Skip To Content

10 Carquinez Scenic Dr

Martinez, CA 94553
  • $76,000
  • STATUS: Active
  • ON SITE: 48 Days
  • ID#: CC41112100
UPDATED: 17 min ago
$76,000
  • 0
    BEDS
  • 0.11
    ACRES
  • 0
    BATHS
  • 0
    1/2 BATHS
Neighborhood:
Type:
Vacant Land / Lots
County:

School Ratings & Info

Listed by Peter Gillis of DirtBrokers: (925) 765-0629.

Description

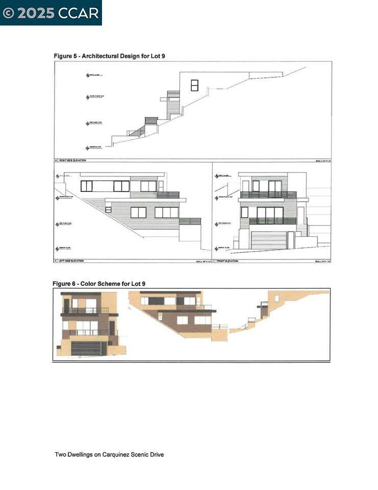
2 Water view lots overlooking the Carquinez Straits. Walking distance to the historic Martinez downtown. Modern architecture homes are designed, and a Planning commission approval has been granted. Being sold with the adjacent lot $152,000 for both. Great builder project.

Monthly Payment Calculator



© 2025 MLSListings Inc. Based on information from MLSListings MLS as of 2025-11-07T22:50:03.44. Data is updated hourly. All data, including all measurements and calculations of area, is obtained from various sources and has not been, and will not be, verified by broker or MLS. All information should be independently reviewed and verified for accuracy. Properties may or may not be listed by the office/agent presenting the information. DX information is provided exclusively for consumers' personal, non-commercial use and may not be used for any purpose other than to identify prospective properties consumers may be interested in purchasing. Information is deemed reliable but is not guaranteed accurate by the MLS or eXp Realty of California, Inc.

Licensed in the State of California.
Website powered by BoomTown.
www.bayarearealestatesearch.com/homes/168074295
Print Image

10 Carquinez Scenic Dr Martinez, CA 94553

  • Price: $76,000
  • Status: Active
  • On Site: 48 Days
  • Updated: 17 min ago
  • ID#: CC41112100
0
Beds
0
Baths
0
½ Baths
0.11
Acres
Neighborhood:
None
County:
Contra Costa
Property Description
2 Water view lots overlooking the Carquinez Straits. Walking distance to the historic Martinez downtown. Modern architecture homes are designed, and a Planning commission approval has been granted. Being sold with the adjacent lot $152,000 for both. Great builder project.
Exterior Features

Lot Description SurveyedGrade - Sloped UpBuilding Pad - PossibleCorners Marked - NoOther Lot Dimensions 50

Property Features

Additional Listing Info Not Applicable City Name MARTINEZ Cross Street Talbert Development Status Approved Building PlanOther - Call Listing AgentRaw LandSite Plan Hoa YN No Lot Size Area Maximum 4900.00 Lot Size Area Min 4900.00 Property Sub Type Other Residential Land Sewer Septic Sewer - Public Utilities None / No Utilities Water Public Zoning R2.5

Listed by Peter Gillis of DirtBrokers: (925) 765-0629.



© 2025 MLSListings Inc. Based on information from MLSListings MLS as of 2025-11-07T22:50:03.44. Data is updated hourly. All data, including all measurements and calculations of area, is obtained from various sources and has not been, and will not be, verified by broker or MLS. All information should be independently reviewed and verified for accuracy. Properties may or may not be listed by the office/agent presenting the information. DX information is provided exclusively for consumers' personal, non-commercial use and may not be used for any purpose other than to identify prospective properties consumers may be interested in purchasing. Information is deemed reliable but is not guaranteed accurate by the MLS or eXp Realty of California, Inc.

Licensed in the State of California.
Website powered by BoomTown.
 
https://bt-photos.global.ssl.fastly.net/siliconv/orig_boomver_1_24325632-1.jpg https://bt-photos.global.ssl.fastly.net/siliconv/orig_boomver_1_24325632-1.jpg https://bt-photos.global.ssl.fastly.net/siliconv/orig_boomver_1_24325632-1.jpg
Logo
eXp Realty of California, Inc
,

Listed by Peter Gillis of DirtBrokers: (925) 765-0629.